Hey there, business owners and property enthusiasts! New Zealand’s 2025 Budget has dropped an exciting tax change that makes investing in a Cosy Cabins transportable office block a no-brainer. Starting May 22, 2025, you can claim a 20% upfront tax deduction on new assets, including commercial buildings like our portable office blocks. Plus, because Cosy Cabins’ office blocks are classified as transportable buildings, you can depreciate the remaining value at the legal rate. Let’s break it down simply, toss in an example, and show why now’s the perfect time to buy a Cosy Cabins office block.
What’s the New Tax Rule?
The “Investment Boost” from the 2025 Budget lets businesses deduct 20% of the cost of new assets, including commercial buildings, in the year you buy or build them. Normally, non-transportable commercial buildings have a 0% depreciation rate, but transportable buildings like Cosy Cabins’ office blocks are different—they qualify for ongoing depreciation. With the new rule, you get a 20% upfront deduction, and then you can depreciate the remaining 80% at the legal rate (typically 2% diminishing value for buildings, but confirm with your accountant for your specific setup).
A Simple Example
Let’s say you buy a Cosy Cabins transportable office block for $500,000 in June 2025. You can claim 20% ($100,000) as a tax deduction in your 2025/26 tax return. At a 28% company tax rate, that’s a $28,000 tax saving right away. Then, the remaining $400,000 can be depreciated over time—say, at 2% diminishing value, giving you an additional $8,000 deduction ($400,000 × 2%) in the next year, and so on. That’s double the tax benefits: an upfront boost and ongoing deductions!
Why Transportable Buildings Are a Game-Changer
Cosy Cabins’ office blocks are classified as transportable, which means they’re not permanently fixed to a site and can be relocated if needed. This portability unlocks two big advantages:
Ongoing Depreciation: Unlike fixed commercial buildings, transportable buildings can be depreciated at the legal rate after the initial 20% deduction, stretching your tax savings over years.
Flexibility: Need to move your office to a new location? No problem! Cosy Cabins’ modular designs make relocation easy, protecting your investment if your business needs change.
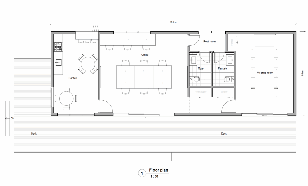
Why Choose a Cosy Cabins Office Block?
Cosy Cabins specializes in modular, eco-friendly, transportable office blocks that are perfect for businesses of all sizes. Our buildings are brand-new, qualifying for the 20% upfront deduction, and their transportable nature means you can keep claiming depreciation. Whether you need a sleek office for your team or a multi-unit space for tenants, our customizable, energy-efficient designs are built to last, delivering long-term value.
Things to Keep in Mind
New Assets Only: The 20% deduction applies to new buildings or those “new to New Zealand” (e.g., imported or built after May 22, 2025). Second-hand buildings don’t qualify.
Timing is Key: The asset must be used or available for use on or after May 22, 2025.
Clawback Rule: If you sell the building for more than its tax book value, you might need to repay some of the deducted amount, similar to regular depreciation rules.
Confirm Depreciation: Check with your accountant to verify the exact depreciation rate for your transportable building, as it can vary based on specifics.
Act Now with Cosy Cabins!
This tax change, combined with the unique benefits of transportable buildings, makes a Cosy Cabins office block a brilliant investment. You get a modern, high-quality workspace, a 20% upfront tax deduction, and ongoing depreciation to keep the savings coming. Don’t wait—contact Cosy Cabins today to explore our range of transportable office blocks and start planning your investment. Let’s build your business’s future with a little help from New Zealand’s tax system!
Browse your starting point here: https://www.cosycabins.co.nz/all-cabins/
We customize to suit your site and needs.
To find out more about our range, features and bespoke options Get in touch today.


