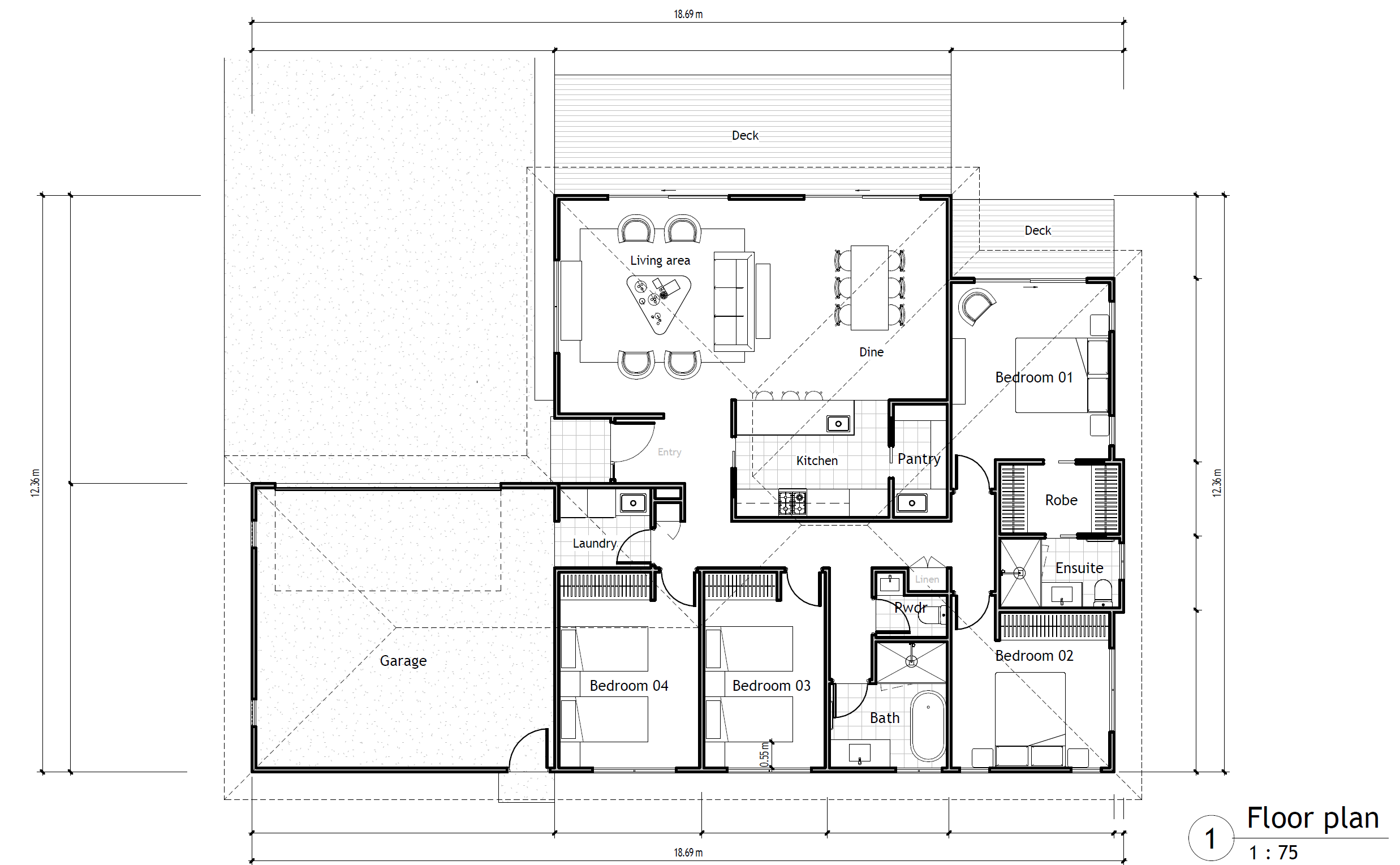
Overview
Generous 4-bedroom home
The Kerie 191 is a generous 4-bedroom home designed with families in mind, combining warmth, style, and plenty of space for everyday living and entertaining. Bright, open living areas, a modern kitchen with walk-in pantry, and thoughtful features like a master ensuite, double garage, and dedicated laundry make life easy, while energy-smart design and low-maintenance finishes provide peace of mind.
Specifications:
- Four bedrooms, master with ensuite and walk-in robe.
- Quality kitchen featuring Fisher & Paykel appliances and a walk-in pantry.
- Energy-efficient LED downlights installed throughout.
- Plush carpet installed throughout.
- Gas hot water and a Daikin heat pump for efficiency.
- Floor, wall and ceiling insulation for year-round comfort.
- Double undercover garage for secure storage of your vehicles and extra items.
- Thermally broken aluminium bi-folds windows and doors for energy efficiency, airflow, and indoor-outdoor living.
- Concrete foundations.
Optional extras:
- Garapa hardwood decking, finished with protective oil.
- Transform your outdoor areas with professional landscaping, including gardens, lawns.
- Add warmth, privacy with our selection of high-quality curtains or blinds.
- Durable, professionally constructed driveway, providing safe and convenient access.
From concept to completion, our full-service process manages everything all with a fixed-price guarantee. Your home, your way, ready to move in and backed by our 10-year materials and workmanship guarantee and 1-year maintenance period.
Key Features
Features
Low upkeep
Beautiful, low-maintenance cladding designed for long-lasting style and hard-wearing performance, keeping your home looking great with minimal upkeep.
Family-friendly bedrooms
Four roomy bedrooms provide space for everyone, with a private master retreat and versatile secondary rooms.
Double undercover garage
Secure, sheltered, and spacious, providing protection for vehicles while offering extra storage for family needs.
Options
Options
Decking
Crafted from rich Garapa hardwood, add a durable, weather-resistant deck finished with protective oil for lasting beauty. Perfect for morning coffees, sunset drinks, or relaxed weekends entertaining family and friends.
Curtains or blinds
Thoughtfully chosen to add comfort, style, and privacy, our high-quality curtains or blinds let you control light and create a cozy, welcoming atmosphere in every room.
Eco friendly solutions
Experience independence with our environmentally friendly solutions including solar power and rainwater collection tanks.
Let's Talk!
Interested in this Cabin?
Have questions or need a custom option?
Fill out the form below, and we’ll help you find the perfect cabin for your needs.
Make it yours
Make it yours
Want the full technical specifications, floorplan, or custom options? Contact us today!













