Overview
A Smart, Modern Tiny Home on Wheels
The Tiny30 proves that great design doesn’t need a big footprint. This 30m² transportable tiny home is thoughtfully crafted for comfortable, efficient living, without compromise. Built to NZ Building Code standards and finished to a high-quality specification, the Tiny30 is fully insulated, self-contained, and ready to live in.
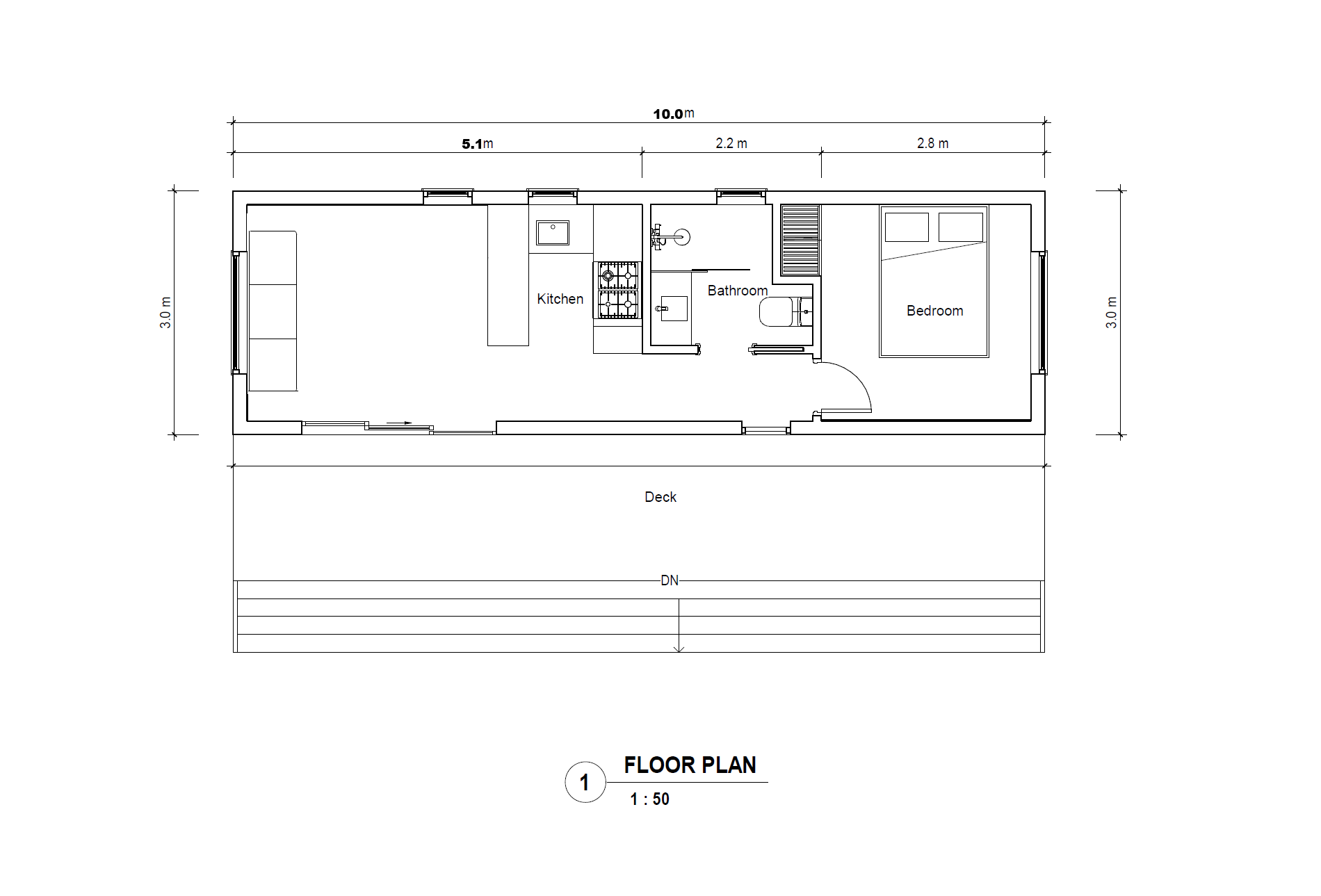
Cabin specifications:
- 3.0 x 10.0 x 3.8m cabin with one bedroom and one bathroom.
- Timber frame built to NZS 3604 standards for durability, seismic and wind resistance.
- Energy-efficient LED downlights installed throughout.
- External 32A caravan plug.
- Floor, wall and ceiling insulation for year-round comfort.
- Thermally broken aluminium bi-folds windows and doors for energy efficiency, airflow, and indoor-outdoor living.
- Low-maintenance, long-lasting Colorsteel trapezoidal iron cladding and roof.
Optional extras:
- Optional loft bedroom for extra sleeping space.
- Off-grid solar, septic and freshwater systems available.
- Waste water, rain harvesting, power and data connections.
- Garapa hardwood decking, finished with protective oil.
- Fold-out awning, UV-resistant fabric, wind-secure frame.
- HVAC system or log burner.
- Nationwide, insured delivery with full setup and placement.
Whether you’re looking for a full-time home, a stylish guest retreat, or a high-performing Airbnb, the Tiny30 adapts effortlessly. Clever space planning, generous natural light, and flexible layout options create a home that feels open, functional, and surprisingly spacious, delivering big living in a compact, transportable design.
Features
Transportable
Built on wheels, the Tiny30 lets you take your home where life takes you from backyards to remote escapes.
Fully insulated
Engineered with high-performance insulation and energy-smart design to keep you comfortable all year, no matter the season.
Kitchen
A compact yet practical kitchen with high-quality appliances and ample storage for all your essentials.
Options
Options
Loft Bedroom
Make the most of your cabin’s footprint by adding a cosy loft, creating extra sleeping space without compromising on comfort or style.
Road-Legal Trailer
Move your home with ease by adding a road-legal trailer for hassle-free transport so your Tiny30 can travel safely to any backyard, holiday spot, or remote escape.
Transportation
We offer nationwide insured delivery to ensure your cabin arrives safely and hassle-free, our team manages everything from transport and site access planning to final placement and setup.
Let's Talk!
Interested in this Cabin?
Have questions or need a custom option?
Fill out the form below, and we’ll help you find the perfect cabin for your needs.
Make it Yours
Make it Yours
Want the full technical specifications, floorplan, or custom options? Contact us today - we’re happy to provide detailed drawings and advice for your site.















